Intresseanmälan
Rosendals radhusprojekt!

ROSENDAL UPPSALA

Var:

Rosendal Uppsala

Vad:

11 brf-radhus

Rum:

5-6 rok

Boarea:

143 kvm

Arkitekt:

OKIDOKI

Säljstart:

Preliminärt våren 2024

Välkommen hem till Fru Dagmar.
11 unika radhus som är precis så gröna som de ser ut.

Fru Dagmar välkomnar dig och din familj med en stor och öppen famn.
Här erbjuds en miljö som gjord för en trygg och naturlig uppväxt för små underverk med mycket spring i benen. De gröna radhusens baksidor är vända mot en stor gräsplan perfekt för allsköns familjeaktiviteter. En lummig plats där det kommer fikas och grillas, spelas krocket och kubb, hoppas rep och lekas kull, och en massa annat i bästa bullerbyanda.

Fru Dagmar, som är det första radhusområdet i Rosendal, ligger idylliskt bara några minuter från Stora Torget i Uppsala. Här finns närheten till alla bekvämligheter, till skolor, daghem, handel och annan service som gör vardagen lätt och fungerande. Men här finns också närheten till naturen som bidrar till den totala balansen i tillvaron. Den omfamnande känsla vi kallar lugn.

Anmäl intresse nu

Grönt som området i sig

Rosendal är ett område med mycket natur (klassat som bilbegränsat). Alldeles i närheten av böljande gräsmattor och en vacker damm, och bara ett stenkast bort från en liten skog, ligger hon där, Fru Dagmar. Med alla 11 radhus målade i en behaglig och rogivande grön kulör. Det är skönt för ögonen och ger vila till själen. På så sätt passar också husen väl in i naturens egen harmoniska färgskala.

En grön oas

Fru Dagmars hus är tänkta som en grön oas där barn kan springa fritt omkring utan en massa förmaningar. Helt naturligt är därmed innerområdet bilfritt. Du kan fortfarande köra fram till ditt radhus för att lasta på och av, men parkerar gör du en bit bort. Kanske kommer du någon gång längta efter din bils närhet, men sannolikt värderar du en trygg miljö för dina barn högre.

Grönt ljus för miljön

Visst är det befriande att bidra lite till en grönare framtid. Fru Dagmars radhus har inbyggda moderna lösningar som både alstrar och sparar energi – exempelvis finns det såväl solceller som en anläggning för återvinning av duschvatten. Husen byggs helt i trä och miljöklassas enligt Svanen. Projektet är certifierat med miljöbyggnad silver och håller energiklass B. Det fina med klassificeringen är att det hjälper dig som inte själv är miljöexpert att göra ett klokt och hållbart val.

På grönare kvist

Det som är bra för miljön är många gånger också långsiktigt välgörande för din ekonomi. Solcellerna på taket minskar ditt behov av att köpa el. Husens robusta konstruktion håller effektivt värmen inne och kylan ute, vilket minskar behovet av uppvärmning. Materialen är omsorgsfullt utvalda och av hög kvalitet vilket skjuter reparationer och underhåll på framtiden. Tack vare Fru Dagmars miljöklassning har du dessutom möjlighet att få grönt bolån med reducerad boränta. Det kan också vara skönt att veta att föreningens ekonomi startas med medvetet låga lån, därav de låga månadsavgifterna. Ett boende hos Fru Dagmar är med andra ord en investering i långsiktigt låga och kontrollerade driftskostnader.

Ett grönklingande namn

Med allt fokus på det gröna, vad vore mer naturligt än att välja ett namn från naturen själv. Namnet Fru Dagmar är inspirerat av den vackra danska rosen med samma namn. De stora, enkla, silverglänsande rosa blommorna med fin doft har matchats ihop med kulörerna för projektet. De dekorativa nyponen är dessutom perfekta när du ska laga nyponsoppa till höstens skogspromenader.

Grönt är skönt

Om det tidigare har rått någon osäkerhet om med vilka egenskaper färgen grönt ska förknippas, tycker vi på Franka Bostad att det med ovanstående argument kan vara klarlagt att grönt från och med nu och för all framtid ska förknippas med det beskrivande adjektivet skönt.

Fru Dagmar

Senare säljetapp
Senare säljetapp 1010
5-6 ROK
143 kvm Radhus
Senare säljetapp 1011
5-6 ROK
143 kvm Radhus
Senare säljetapp 1001
5-6 ROK
143 kvm Radhus
Senare säljetapp 1002
5-6 ROK
143 kvm Radhus
Senare säljetapp 1003
5-6 ROK
143 kvm Radhus
Senare säljetapp 1004
5-6 ROK
143 kvm Radhus
Senare säljetapp 1005
5-6 ROK
143 kvm Radhus
Senare säljetapp 1006
5-6 ROK
143 kvm Radhus
Senare säljetapp 1007
5-6 ROK
143 kvm Radhus
Senare säljetapp 1008
5-6 ROK
143 kvm Radhus
Senare säljetapp 1009
5-6 ROK
143 kvm Radhus
1010

5-6 ROK 143 KVM

Bostadstyp: Radhus
1011

5-6 ROK 143 KVM

Bostadstyp: Radhus
1001

5-6 ROK 143 KVM

Bostadstyp: Radhus
1002

5-6 ROK 143 KVM

Bostadstyp: Radhus
1003

5-6 ROK 143 KVM

Bostadstyp: Radhus
1004

5-6 ROK 143 KVM

Bostadstyp: Radhus
1005

5-6 ROK 143 KVM

Bostadstyp: Radhus
1006

5-6 ROK 143 KVM

Bostadstyp: Radhus
1007

5-6 ROK 143 KVM

Bostadstyp: Radhus
1008

5-6 ROK 143 KVM

Bostadstyp: Radhus
1009

5-6 ROK 143 KVM

Bostadstyp: Radhus

Anmäl intresse





    Jag godkänner att mina personuppgifter sparas och hanteras.

    Planskisser & Ritningar
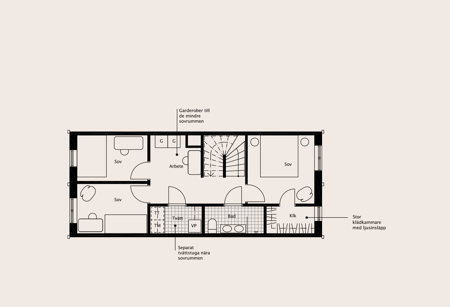
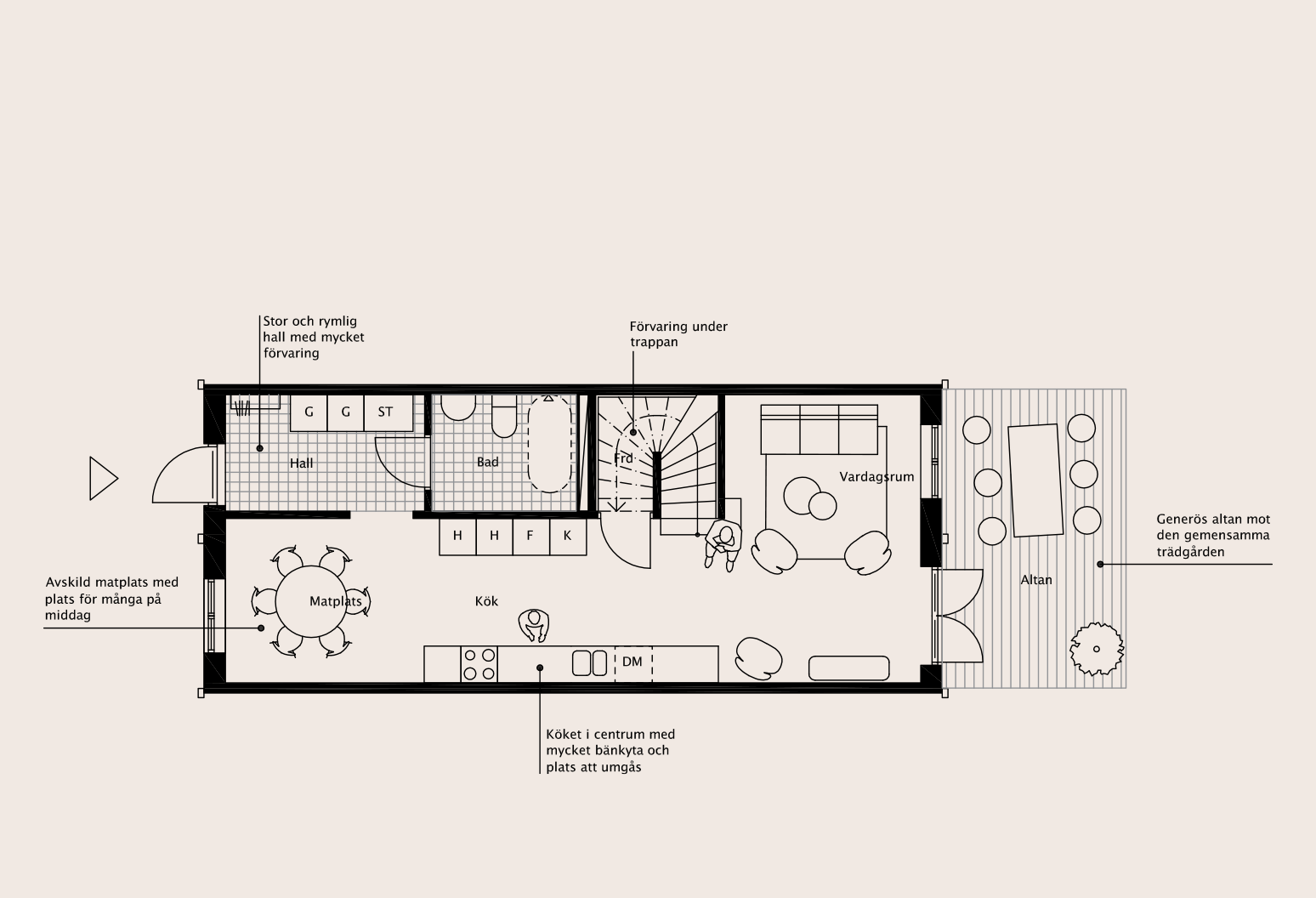
    Våning 1
    Våning 2
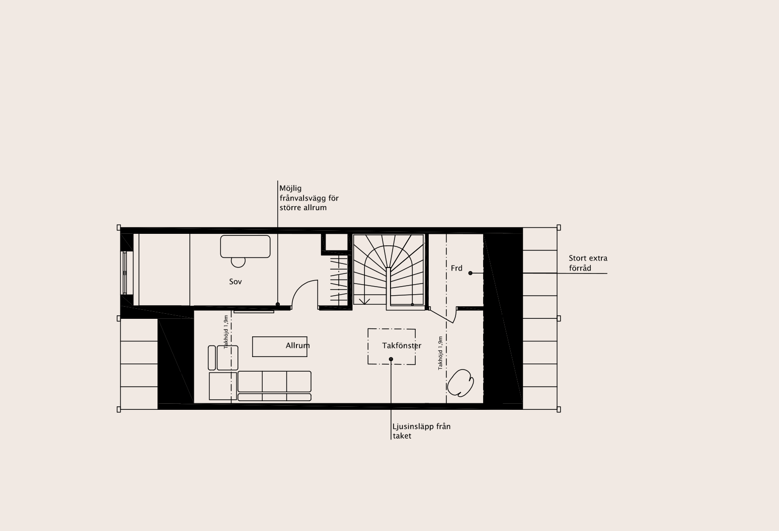
    Våning 3
    Dokument

    Vi guidar dig inför den viktigaste affären i ditt liv.

    Att köpa bostad är en av de viktigaste affärerna i ditt liv. Vi vill att du som köper en bostad av oss på Franka bostad ska känna dig trygg och delaktig genom hela processen.

    Lookbook Fru Dagmar

    FAQ Fru Dagmar

    Materialbeskrivning

    Nordea bankerbjudande

    Snabbfakta
    Kommunikationer

    Närhet till allt.

    En av Rosendals fördelar är att allt finns nära. En lugn cykeltur till Uppsala centrum tar bara några minuter. Det finns cykelpool, bilpool och busstrafik med planer om 20 avgångar i timmen. Dessutom planeras spårvagnstrafik genom Rosendal. Ska du till Stockholm eller Gävle – då är du snabbt ute på E4 och på väg!
    Service

    All service du behöver.

    Här finns allt du behöver på nära gång- eller cykelavstånd – butiker, restauranger, caféer, bibliotek, gym, skolor och förskolor.
    Området

    Läge för aktivitet och återhämtning.

    Det är inte konstigt att Rosendal blivit en så populär plats att bo på. Här bor du mitt emellan två stora naturreservat – och centrala Uppsala ligger bara en cykeltur bort. Rosendal har utvecklats till ett familjärt område med aktiviteter för alla åldrar – padel, tennis, boule, gym och lekparker.
    Arkitektritade radhus

    Välplanerade radhus i härlig miljö.

    Vi lägger stor möda vid att våra bostäder ska uppfylla våra kunders och inte minst våra egna höga krav på en bra bostad. Rosendals första radhus är välplanerade in i minsta detalj där arkitekterna noga valt materialen för att uppnå en naturnära nordiskt härlig känsla. Uteplatserna är dels privata, dels gemensamma. Här odlar, umgås och njuter du.
    Om Fru Dagmar

    Elva ytsmarta hus som gör världen lite grönare

    Fru Dagmar består av 11 radhus i bostadsrättsform, de första i sitt slag i Rosendal. Ett smart boende med många bekvämligheter. Omsorgsfullt har vi valt material av hög kvalitet så att du slipper. Det betyder att du inte behöver betala extra för tillval. I Fru Dagmar ingår redan allt du behöver för ett modernt och genomtänkt boende.

    Välkommen hem till Fru Dagmar!

    Arkitekten berättar

    Riktigt bra bostäder, väl gestaltade med funktionella rum både inne och ute.

    Varifrån kommer inspirationen till husen?

    Inspirationen till Fru Dagmar kommer från den fantastiska naturen som omger Rosendal. Fasaderna målas i gröna kulörer som för tankarna till naturen och som ger intryck av att gård och byggnader utgör en större helhet.

    Hur tänker ni att livet i Fru Dagmar kommer se ut?

    En bilfri, grön oas där barnen fritt kan vistas i den gemensamma trädgården och tillsammans hoppa i studsmattan eller spela kubb i gräset. Den egna privata altanen inbjuder till middagar och umgänge inom familjen och blir man många flyttar man ut till långbordet under pergolan.

    Vi har velat skapa en fin balans mellan det gemensamma och det egna. En urban känsla och småskalighet som ska bjuda in till lek och umgänge men med tydliga gränser mellan privat och gemensamt.

    Vad i Fru Dagmar är ni mest nöjda med?

    + Läs vidare

    Husens placering som skapar gemensamma ytor både mot parken och gatan. Husen som en sekvens från gatan, genom bostäderna och vidare ut i den stora parken med målet att skapa trygga och tydliga platser. Både i övergången mellan gatan och förgårdsmark, men även mellan trädgårdar, gemensamma ytor och den större parken.

    Stadsskogen

    Kronparken

    Carlshage

    Husarparken

    Siegbahnsparken

    Elsa Eschelssons park

    Idrottsplaner

    Talltorget

    Rosendals Torg

    Grindstugans förskola

    Förskola

    Förskola

    Förskola

    Rosendals Skola

    Rosendals Gymnasium

    Universitet

    Universitet

    Multihall

    Idrottshall

    Idrottshall

    Mobilitetshus

    Mobilitetshus

    Mobilitetshus

    Trygghetspaket

    Att köpa bostad genom Franka Bostad är en trygg affär – låt oss berätta varför!

    Trygg förening

    Bostadsrättsföreningens kostnadskalkyl och ekonomiska plan granskas alltid av två av Boverkets intygsgivare. Dessa intygar att uppgifterna är tillförlitliga och att kostnadskalkylen och den ekonomiska planen är trovärdiga och hållbara. Det ger dig trygghet i att det är en stabil och bra förening. Franka Bostad startar och följer den första tiden den bostadsrättsförening du är del av och ser till att föreningen får en god start.

    Franka Bostad ansvarar för föreningens osålda lägenheter

    Månadsavgift för eventuella osålda lägenheter vid tillträdet betalas av Franka Bostad. Skulle det finnas osålda lägenheter kvar sex månader efter färdigställandet av föreningens hus köper Franka Bostad dessa av föreningen enligt pris i ekonomisk plan. Vi tar med andra ord ansvar för att bostadsrättsföreningens ekonomi inte påverkas av eventuellt osålda bostäder.

    Garanti vid uteblivna hyresintäkter

    Kommersiella lokaler i föreningens hus kan utgöra en viktig intäktskälla utöver bostädernas årsavgifter. Franka Bostad garanterar att kompensera föreningen vid eventuella uteblivna hyresintäkter under två år.

    Tillträdesskydd

    Vi lämnar alltid besked om definitiv tillträdesdag minst tre månader före inflyttning. Om du av någon anledning inte kommer att kunna tillträda på utsatt datum erbjuder vi dig ett tillträdesskydd. Detta innebär att du efter en särskild prövning kan få möjlighet att skjuta upp din inflyttning i upp till tre månader.

    Auktoriserade mäklare

    Vi arbetar alltid med auktoriserade mäklare som agerar som en oberoende part mellan bostadsrättsföreningen och dig som köpare.

    Fullgörandeförsäkring och förskottsgaranti

    Vi tecknar alltid en fullgörandeförsäkring eller en motsvarande säkerhet som ger dig en trygghet i att byggnationen slutförs i enlighet med tecknat entreprenadkontrakt. Detta utan extra kostnad för föreningen även om entreprenören av någon anledning inte kan uppfylla sina åtaganden. Vi tillser att bostadsrättsföreningen, innan förskott begärs, ställer säkerhet för förskotten genom att teckna en s.k. förskottsgarantiförsäkring.

    Besiktningar av oberoende part

    Innan inflyttning sker en slutbesiktning som utförs av en oberoende besiktningsman. Efter två år utför vi en garantibesiktning för att säkerställa att allt är fortsatt bra och att inga fel har uppkommit. Garantitiden är fem år med undantag för vitvaror där garantin gäller i två år.

    Intresseanmälan

    Ja, här vill vi bo. Berätta mer!

    Mer från Franka Bostad.

    • Utvalda projekt
    • Till salu
    • Kommande
    • Slutsålda

    Vill du ha löpande info om
    Franka Bostads bostadsprojekt?

    Ja, absolut!